1、点击桌面上的AutoCad 2007快捷图标,如图。

2、在文档中,绘制3个点,用于绘制圆弧。

3、选择工具栏上【绘制】-【圆弧】-【根据起点、圆心、终点】,如图。

4、输入起点位置,如图。

5、输入圆心位置,如图。

6、输入终点位置,如图。

7、查看绘制的圆弧,如图。

时间:2026-04-30 03:12:19
1、点击桌面上的AutoCad 2007快捷图标,如图。

2、在文档中,绘制3个点,用于绘制圆弧。

3、选择工具栏上【绘制】-【圆弧】-【根据起点、圆心、终点】,如图。

4、输入起点位置,如图。

5、输入圆心位置,如图。

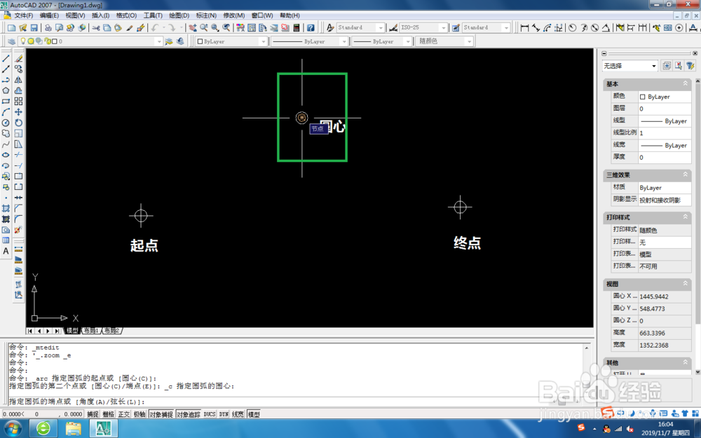
6、输入终点位置,如图。

7、查看绘制的圆弧,如图。
